成都邓浩在线广告营销有限公司
电话:
手机:
E-mail:
网址:
地址:
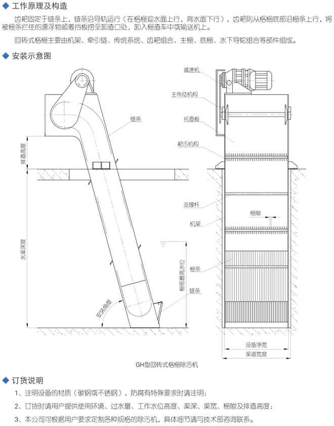
GH型回转式格栅除污机
发布时间:2021-12-09 09:40:01 人气:192 来源:本站



上一篇:YGS型移动式液压抓斗清污机
下一篇:LYZ型螺旋输送压榨机
相关新闻
- 茌平县东邢水厂项目取水浮船泵站正在安装中 2022-06-10
- 终于不用接车了!8辆大车齐出发,浮坞泵船加速驶往山东茌平东刑水库 2022-06-02
- 湖北宜昌一体化泵站如期交货啦! 2022-05-17
- 工厂加班赶工期,泉州某工地一体化泵站顺利交货 2022-05-05
- 为保证客户汛前安装使用,源泉物流部排除疫情干扰正常发货 2022-04-23
- 疫情期间公司严格遵守防疫规定接送货运车辆 2022-04-14
- 热烈祝贺重庆市武隆区垃圾焚烧发电项目取水趸船初步建成 2021-10-05
- 热烈祝贺高邮北澄子河闸站4台132kW潜水轴流泵投入使用 2021-09-29
- 辽宁省沈阳市于洪区洪盛路回转式格栅除污机发货现场 2021-08-12
- 热烈祝贺江苏源泉泵业大型防汛排涝设备验收通过 2021-06-25


客服